Villa singola in vendita

Casella, Via Seriallo
€ 279.000
9 locali 9 locali
175 Mq 175 Mq
2 bagni 2 bagni

Villa singola in vendita

Casella, Via Seriallo

Descrizione annuncio

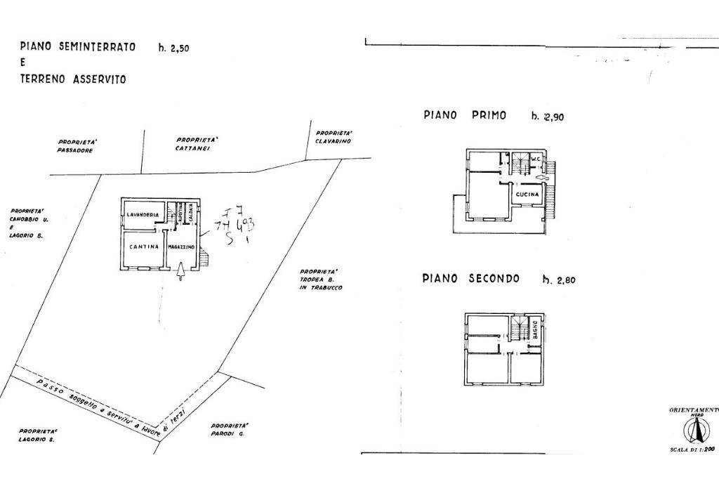
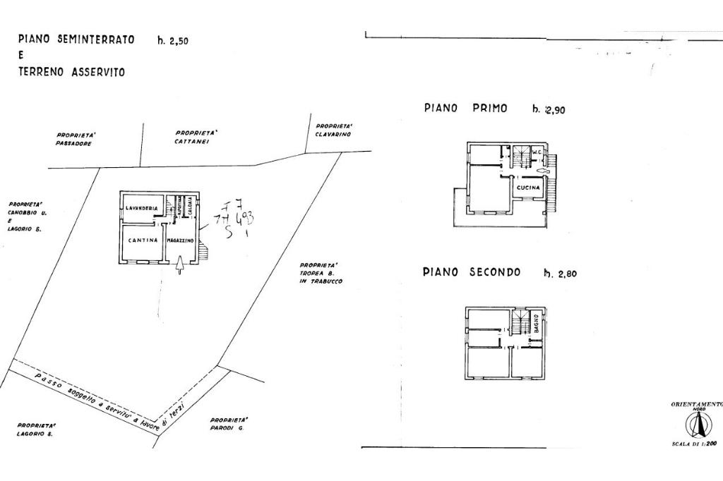
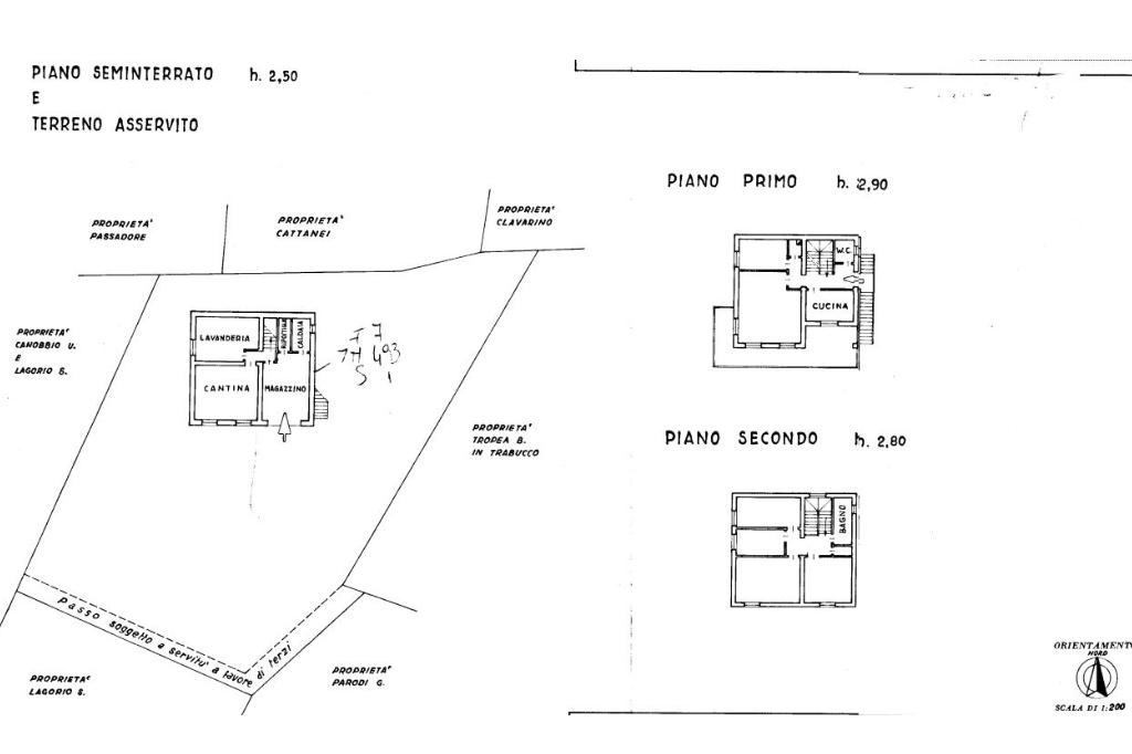
CASELLA - VIA SERIALLO

Nel cuore del comune di Casella, proponiamo in vendita

VILLA singola di circa 175 mq con BOX, CANTINA e GIARDINO

Questa proprietà indipendente su quattro lati offre un'opportunità unica per chi cerca spazio e comodità. Situata a pochi passi dal centro di Casella, la villa si sviluppa su più livelli, l'interno è composto da nove locali, tra cui quattro ampie camere da letto, ideali per famiglie numerose o per chi desidera avere spazio extra per ospiti o uffici domestici.

La presenza di una GRANDE cantina offre ulteriore spazio per lo stoccaggio o per hobby, mentre il box auto assicura comodità e sicurezza per il parcheggio, il piano terra aggiunge circa 80mq alla metratura abitativa.

Il giardino che circonda la villa rappresenta un'oasi di tranquillità, perfetto per momenti di relax all'aperto o per attività all'aria aperta.

La casa inoltre dispone di impianto d'allarme e il riscaldamento è con CALDAIA a GASOLIO con le bocchette in tutte le stanze (oltre al caminetto a legna)

Questa proprietà è un'opportunità da non perdere per chi desidera vivere in una zona centrale con tutti i comfort di una casa indipendente.

Per informazioni chiamare 0109675217 o presso il nostro ufficio in Via Mandelli 56, Casella

Mostra tutto

Nelle vicinanze

Trasporto pubblico Trasporto pubblico
Casella Paese
Casella Paese
330 m
Casella Deposito
Casella Deposito
930 m
Trasporto pubblico
230 m
Canova Crocetta
Canova Crocetta
1,9 Km
Scuole Scuole
Scuola Materna San Luigi Orione
310 m
Scuola Elementare Sandro Gherardi
3,0 Km
Farmacia Farmacia
Farmacia
310 m
Supermercati Supermercati
Ekom
300 m
Carrefour
330 m
Conad
420 m
Di Meglio
1,7 Km
Supermercati
1,9 Km
Negozi Negozi
Negozi
1,3 Km
Bar Bar
Caffetteria Del Centro
220 m
Bar Della Croce
590 m
Bar
1,7 Km
Circolo ANSPI Chez Rosetta
2,0 Km
Ristoranti Ristoranti
Pizzeria Camugin
200 m
Trattoria dalla Posta
250 m
Ristorante Centrale
250 m
Agriturismo "Le Giare"
1,1 Km
Ristoranta Chiara
1,2 Km
Mostra tutto

Caratteristiche

Rif.:
61176577
Piano:
2 di 2 (Piano su più livelli)
Box:
1
Posti auto:
2
Balconi:
1
Terrazzi:
1
Mostra tutto
Prezzo Prezzo
€ 279.000
Rata mutuo Rata mutuo
€ 1.322 / mese
Spese annue Spese annue
€ 0
Proponi il tuo prezzoProponi il tuo prezzo

Classe Energetica

G
G
G
G
G
G
G
G
G
EP globale non rinnovabile:
294.36 kW h/m² anno
EP globale rinnovabile:
80.96 kW h/m² anno
EP invernale del fabbricato:
EP estiva del fabbricato:
Anno di costruzione:
1964
Riscaldamento:
Autonomo
Tipo impianto:
Ad aria
Tipo alimentazione:
Altro

Ti interessa visionare l'immobile?

Fissa un appuntamento  Fissa un appuntamento

Richiedi informazioni

Clicca su Leggi per aprire l'informativa
* Questi campi sono obbligatori

Calcola il tuo mutuo

Semplice e senza impegno
Anticipo

( % )
Mutuo

( % )

pochi semplici passi

inserisci i tuoi dati
Questionario completato
Grazie per aver richiesto un appuntamento senza impegno con un nostro Consulente del Credito e Assicurativo.

Hai inserito correttamente tutti i dati necessari e a breve riceverai una e-mail con un link da convalidare per inviare i tuoi dati.
Affiliato
Studio Casella Srl
Via Mandelli, 56 16015 Casella (GE)

Il nostro staff


  • Alessandro Brassesco
    Affiliato

  • Luna Magnoli
    Coordinatrice
Via Mandelli, 56 16015 Casella (GE)
Zona: Casella - Avosso - Montoggio
Mostra su mappa
Orari: Lun-Sab : 9.00 - 12.30 e 15.00 - 19.30
Affiliato
Studio Casella Srl
Via Mandelli, 56 16015 Casella (GE)

2026 Tecnocasa Franchising S.p.A. - P. IVA 08365160152 - Via Monte Bianco 60/A 20089 Rozzano (MI). Ogni agenzia ha un proprio titolare ed è autonoma. Privacy policy | Policy utilizzo | Cookie policy