Casa semindipendente in vendita

Montoggio, LocalitĂ  montemoro - Montemoro
€ 28.000
5 locali 5 locali
130 Mq 130 Mq
1 bagno 1 bagno

Casa semindipendente in vendita

Montoggio, LocalitĂ  montemoro - Montemoro

Descrizione annuncio

MONTOGGIO - LOC MONTEMORO

Nel cuore del caratteristico borgo pedonale di Montemoro, nel comune di Montoggio si propone in vendita

TERRATETTO LIBERA SU TRE LATI con GIARDINO, CANTINE E RUSTICO DI PROPRIETA'.

L'immobile è ubicato nella piazza principale della frazione e di conseguenza comodo al parcheggio.

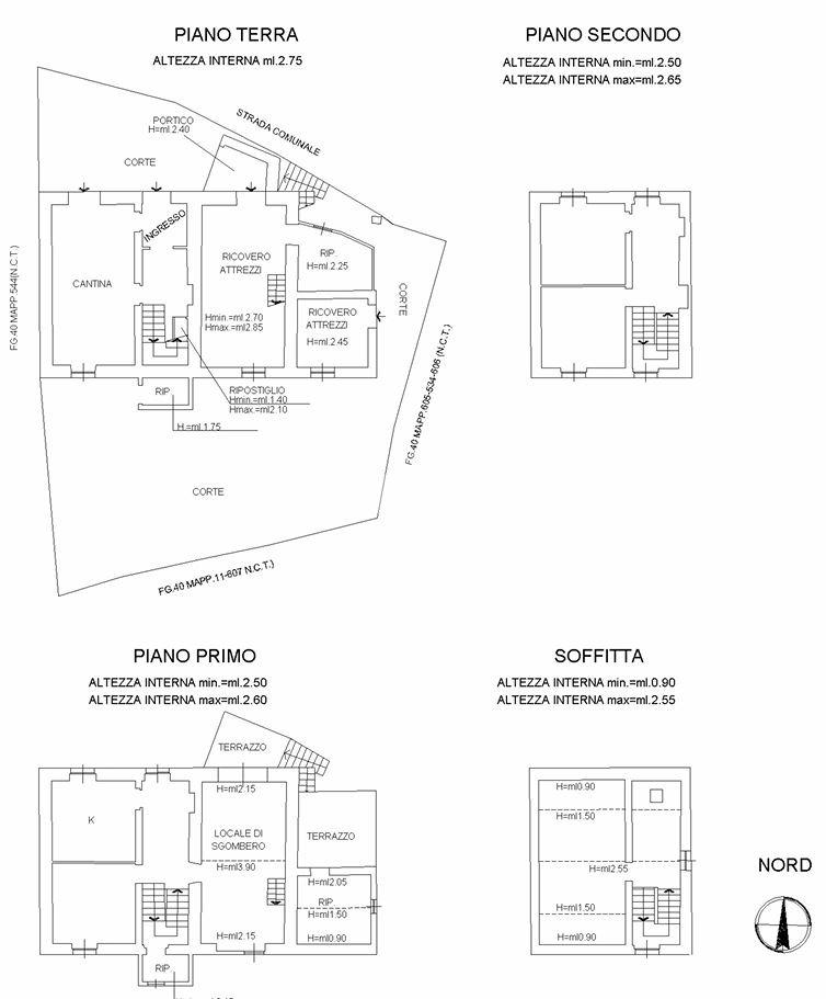
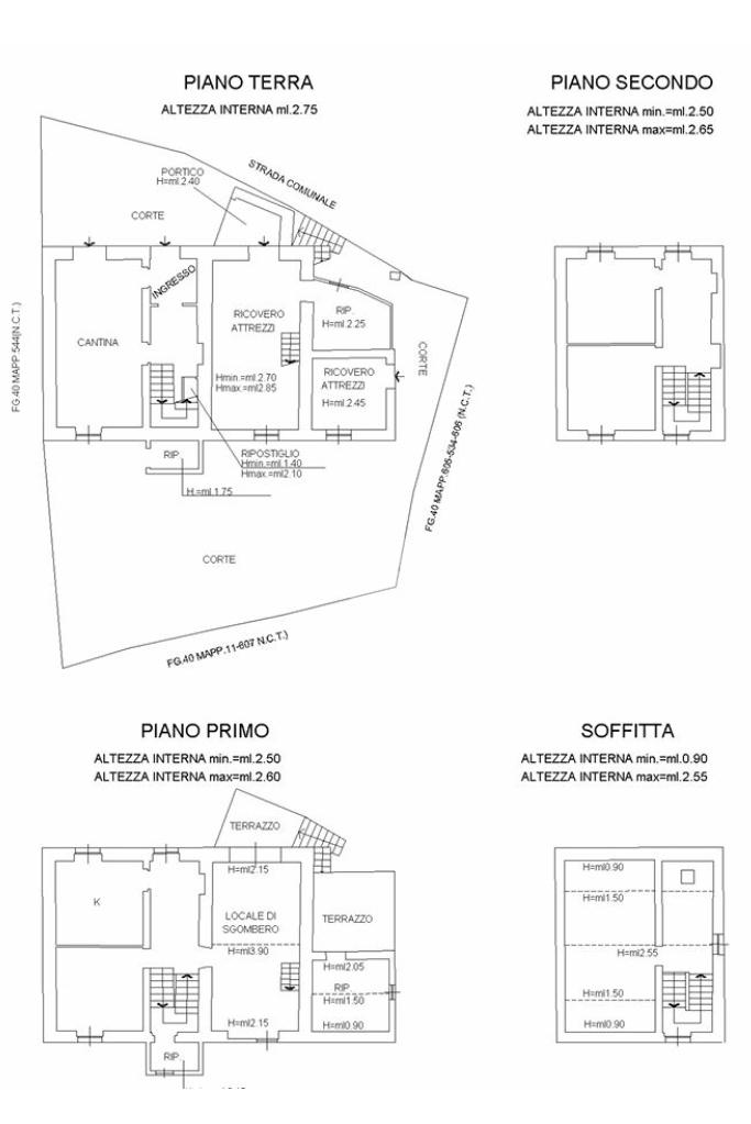
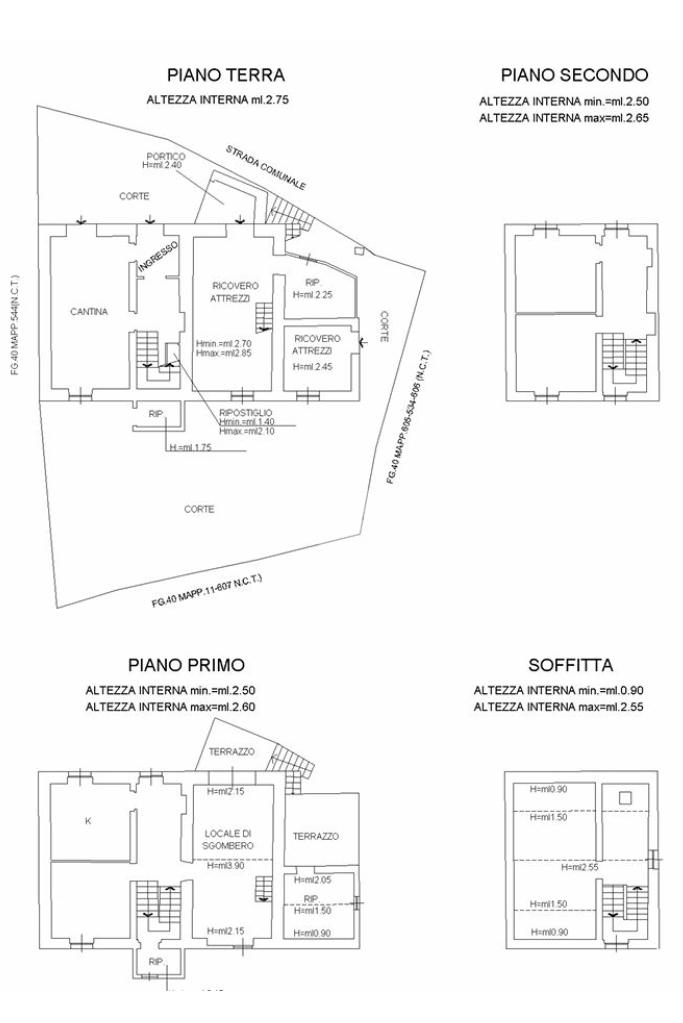
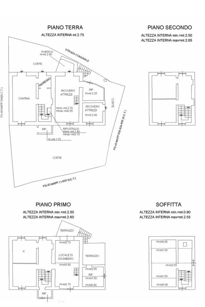
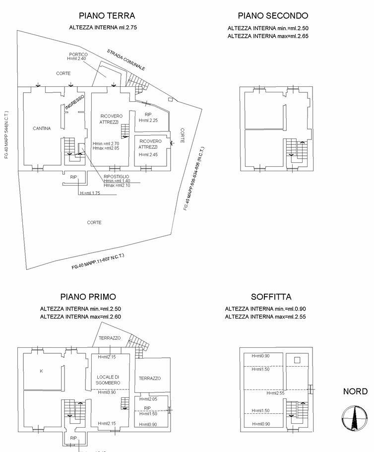
Posto al piano terra, con accesso tramite corte privata troviamo l'ingresso dell'abitazione con collegamento interno alla prima delle due cantine.

La scala interna porta al primo piano abitabile dove si trova una camera utile, la cucina e il bagno. Al piano superiore troviamo altre due camere utili e l'accesso all'ampio sottotetto.

Completano la proprietĂ  due TERRAZZE VIVIBILI, IL GIARDINO di circa 2OO mq E TERRENI poco distanti dalla casa.

Immersa in un contesto verde, questa casa rappresenta un'opportunitĂ  unica per chi desidera vivere lontano dal caos cittadino.

Maggiori informazioni presso il nostro ufficio in Via Mandelli 56, Casella o chiamare al 0109675217

Mostra tutto

Nelle vicinanze

Trasporto pubblico Trasporto pubblico
Trasporto pubblico
2,9 Km
Supermercati Supermercati
Antola
1,5 Km
Ristoranti Ristoranti
Ristorante Pizzeria La Rotonda
2,8 Km
Mostra tutto

Caratteristiche

Rif.:
61141314
Piano:
2 di 2 (Piano su piĂš livelli)
Terrazzi:
2
Camere da letto:
3
Arredamento:
Assente
Condizionamento:
Assente
Mostra tutto
Prezzo Prezzo
€ 28.000
Rata mutuo Rata mutuo
€ 132 / mese
Spese annue Spese annue
€ 0
Proponi il tuo prezzoProponi il tuo prezzo

Classe Energetica

G
G
G
G
G
G
G
G
G
EP globale non rinnovabile:
357.86 kW h/m² anno
EP globale rinnovabile:
145.21 kW h/m² anno
EP invernale del fabbricato:
EP estiva del fabbricato:
Anno di costruzione:
1900
Riscaldamento:
Autonomo
Tipo impianto:
A stufa
Tipo alimentazione:
Altro

Ti interessa visionare l'immobile?

Fissa un appuntamento  Fissa un appuntamento

Richiedi informazioni

Clicca su Leggi per aprire l'informativa
* Questi campi sono obbligatori

Calcola il tuo mutuo

Semplice e senza impegno
Anticipo

( % )
Mutuo

( % )

pochi semplici passi

inserisci i tuoi dati
Questionario completato
Grazie per aver richiesto un appuntamento senza impegno con un nostro Consulente del Credito e Assicurativo.

Hai inserito correttamente tutti i dati necessari e a breve riceverai una e-mail con un link da convalidare per inviare i tuoi dati.
Affiliato
Studio Casella Srl
Via Mandelli, 56 16015 Casella (GE)

Il nostro staff


  • Alessandro Brassesco
    Affiliato

  • Luna Magnoli
    Coordinatrice
Via Mandelli, 56 16015 Casella (GE)
Zona: Casella - Avosso - Montoggio
Mostra su mappa
Orari: Lun-Sab : 9.00 - 12.30 e 15.00 - 19.30
Affiliato
Studio Casella Srl
Via Mandelli, 56 16015 Casella (GE)

2025 Tecnocasa Franchising S.p.A. - P. IVA 08365160152 - Via Monte Bianco 60/A 20089 Rozzano (MI). Ogni agenzia ha un proprio titolare ed è autonoma. Privacy policy | Policy utilizzo | Cookie policy