Casa semindipendente in vendita

Valbrevenna, LocalitĂ  Caserza
€ 25.000
2 locali 2 locali
50 Mq 50 Mq
1 bagno 1 bagno

Casa semindipendente in vendita

Valbrevenna, LocalitĂ  Caserza

Descrizione annuncio

VALBREVENNA - LOC CASERZA

Nel cuore del caratteristico borgo di Caserza nel comune di Valbrevenna, proponiamo

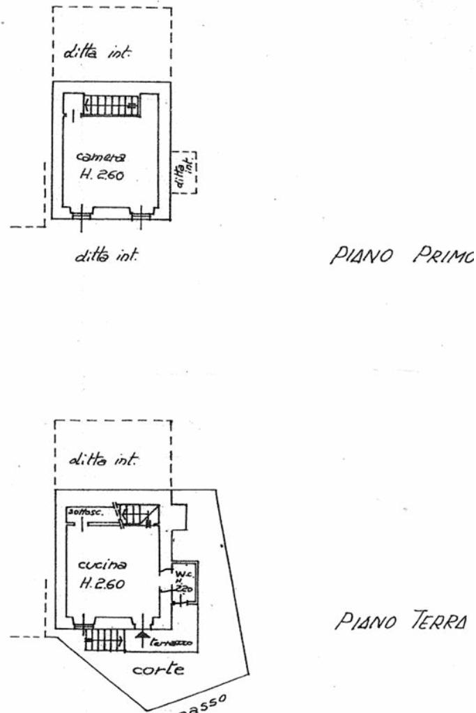
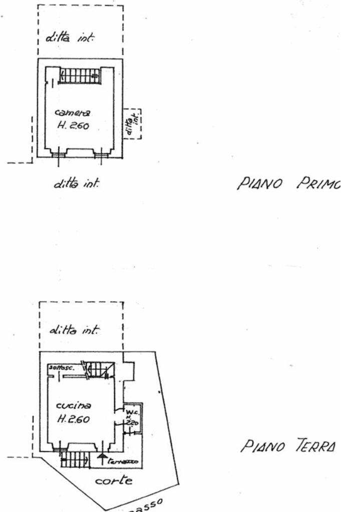
TERRATETTO libera su 3 lati con GIARDINO, perfetta per chi cerca un rifugio tranquillo a 15 minuti di auto dai principali servizi.

Questa abitazione di 50 mq si sviluppa su due piani, offrendo un'atmosfera accogliente e autentica.

La proprietĂ  vanta una vista mare che regala scorci suggestivi e un bel giardino di circa 150 mq, ideale per il relax, la coltivazione di un orto o per trascorrere momenti speciali all'aria aperta.

La casetta, offre un'opportunitĂ  unica per vivere immersi nella natura, Perfetta per chi desidera un angolo di pace lontano dal caos cittadino.

Dotata di stufa a legna, ottima esposizione al sole e parcheggio a 20 metri dalla casa.

Per informazioni chiamare 019675217 o presso il nostro ufficio in via Mandelli 56, Casella

Mostra tutto

Nelle vicinanze

Trasporto pubblico Trasporto pubblico
Trasporto pubblico
520 m
Farmacia Farmacia
Farmacia
1,9 Km
Ristoranti Ristoranti
Il Caminetto
1,2 Km
Honey Bar
1,8 Km
Trattoria " CĂ  du Giancu"
3,0 Km
Mostra tutto

Caratteristiche

Rif.:
61113476
Piano:
2 di 2 (Piano su piĂš livelli)
Terrazzi:
1
Camere da letto:
1
Arredamento:
Assente
Condizionamento:
Assente
Mostra tutto
Prezzo Prezzo
€ 25.000
Rata mutuo Rata mutuo
€ 118 / mese
Spese annue Spese annue
€ 0
Proponi il tuo prezzoProponi il tuo prezzo

Classe Energetica

G
G
G
G
G
G
G
G
G
EP invernale del fabbricato:
EP estiva del fabbricato:
Anno di costruzione:
1800
Riscaldamento:
Autonomo
Tipo impianto:
A stufa
Tipo alimentazione:
Altro

Ti interessa visionare l'immobile?

Fissa un appuntamento  Fissa un appuntamento

Richiedi informazioni

Clicca su Leggi per aprire l'informativa
* Questi campi sono obbligatori

Calcola il tuo mutuo

Semplice e senza impegno
Anticipo

( % )
Mutuo

( % )

pochi semplici passi

inserisci i tuoi dati
Questionario completato
Grazie per aver richiesto un appuntamento senza impegno con un nostro Consulente del Credito e Assicurativo.

Hai inserito correttamente tutti i dati necessari e a breve riceverai una e-mail con un link da convalidare per inviare i tuoi dati.
Affiliato
Studio Casella Srl
Via Mandelli, 56 16015 Casella (GE)

Il nostro staff


  • Alessandro Brassesco
    Affiliato

  • Luna Magnoli
    Coordinatrice
Via Mandelli, 56 16015 Casella (GE)
Zona: Casella - Avosso - Montoggio
Mostra su mappa
Orari: Lun-Sab : 9.00 - 12.30 e 15.00 - 19.30
Affiliato
Studio Casella Srl
Via Mandelli, 56 16015 Casella (GE)

2025 Tecnocasa Franchising S.p.A. - P. IVA 08365160152 - Via Monte Bianco 60/A 20089 Rozzano (MI). Ogni agenzia ha un proprio titolare ed è autonoma. Privacy policy | Policy utilizzo | Cookie policy